Italiano
470.000 €

ARONA - VILLA IN COSTRUZIONE

Villa in vendita • Arona - Via XX settembre, 10
Introduzione
Benvenuti al progetto residenziale "Il Riccio e il Tasso", un'esclusiva iniziativa edilizia che offre ville unifamiliari di nuova costruzione, immerse in un contesto tranquillo e ben servito. Le ville, situate a soli 10 minuti a piedi dal lago di Arona, rappresentano una rara opportunità in un'area privilegiata. Questo cantiere è l'unico a offrire ville singole e completamente indipendenti adiacenti al comune di Arona, garantendo un comfort abitativo senza compromessi.
• Inizio lavori previsto: Ottobre 2025
• Prenotazione e personalizzazione già disponibili.
________________________________________
Soluzione Abitativa
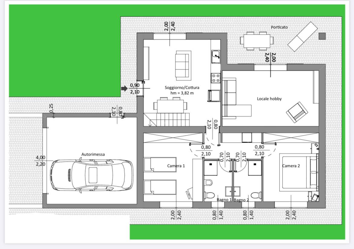
1. Ultima villa disponibile
o Superficie abitativa: 150 mq (Piano terra + Piano sottotetto)
o Portico coperto: 25 mq
o Box auto: 30 mq
o Giardino privato: 600 mq circa

________________________________________
Dettagli Tecnici e Capitolato delle Opere
Struttura e Fondazioni
La costruzione si basa su solidi criteri tecnici:
• Fondazioni: Cemento armato con cls RcK 250, garantendo stabilità e sicurezza.
• Vespaio aerato: Prefabbricato tipo "granchio" con rete elettrosaldata e getto superiore per isolamento e ventilazione del piano terra.
• Muratura: Blocchi in laterizio alveolare con cappotto termico esterno (spessore 12 cm), garantendo alte prestazioni energetiche.
Copertura e Serramenti
• Tetto: Struttura in legno lamellare con isolamento termico di 16 cm, composto da pannelli in polistirene e fibra di legno. Copertura con tegole rosse.
• Serramenti: Finestre in legno di pino di Svezia con vetrocamera antisfondamento e basso emissivo, trasmittanza termica U=1.3 W/m²K. Zanzariere predisposte.
• Porta d’ingresso blindata: Design sobrio e pannello esterno bianco.
• Box auto: Porta sezionale motorizzata per praticità e sicurezza.
Impiantistica Avanzata
• Riscaldamento a pavimento: Sistema alimentato da pompa di calore elettrica di ultima generazione, abbinata a pannelli fotovoltaici da 6 kW per una maggiore efficienza energetica.
• Impianto elettrico: Conforme alle norme CEI, completo di predisposizioni per videocitofono e antenna TV satellitare/terrestre.
• Impianto idrico-sanitario: Dotato di apparecchi Duravit o equivalenti, con attacchi per lavatrice e lavastoviglie.
• Ventilazione Meccanica Controllata (VMC): Predisposizione per unità puntuali in soggiorni e camere, per una qualità dell'aria ottimale.
Finiture di Pregio
• Pavimenti: Gres porcellanato formato 60x60, resistente e ideale per il riscaldamento a pavimento.
• Bagni: Rivestimenti in gres porcellanato fino a 210 cm di altezza, personalizzabili da campionario.
• Scale interne: Struttura in ferro con pedate in legno massello di rovere (dove prevista).
• Esterni: Portico e marciapiedi rifiniti in gres porcellanato, giardino livellato e pronto per la personalizzazione.
________________________________________
Descrizione degli Spazi Abitativi:
• Zona giorno: Luminosa e spaziosa, composta da un soggiorno con grandi vetrate, mansardato, ampia cucina abitabile e moderna con accesso diretto al portico esterno.
Scala interna a vista con l'accesso al locale sottetto mansardato.
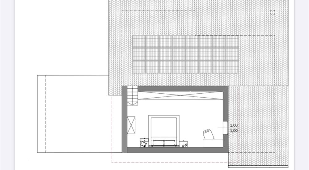
• Zona notte: Due camere da letto ampie e ben illuminate, con due bagni adiacenti per la massima praticità. Camera Matrimoniale mansardata.
• Box auto: Spazioso e facilmente accessibile, con capienza per due veicoli.
• Giardino privato: Area verde di grandi dimensioni, ideale per il relax, il gioco o la realizzazione di un'area esterna attrezzata.
________________________________________
Rendering Esterni
Le ville si distinguono per il loro design moderno e armonioso:
• Linee architettoniche pulite, con tetto a falde e pannelli fotovoltaici integrati.
• Ampie superfici vetrate, che favoriscono l'illuminazione naturale.
• Spazi verdi privati, delimitati da recinzioni predisposte per piante rampicanti, che garantiscono privacy e un'atmosfera accogliente.
________________________________________
Personalizzazioni e Dettagli Aggiuntivi
Gli acquirenti avranno la possibilità di personalizzare:
• Materiali per pavimenti e rivestimenti interni.
• Tipologia di sanitari e rubinetterie.
• Configurazioni interne per adattare gli spazi alle proprie esigenze.

Caratteristiche principali
Codice
CA012-2025
Città
Arona
Categoria
Villa
Prezzo
470.000 €
Locali
4
Camere
2
Bagni
2
Mq
150
Box
2
Mq Box
30
Mq Giardino
600
Classe energetica
A1
0,8 kWh/m²a
Stato Immobile
In Costruzione
Grado
Signorile
Posizione
Periferia
Panorama
Vista Giardino
Orientamento
Sud Ovest
Lati Liberi
4
Giardino
Privato
Tipo Soggiorno
Soggiorno
Tipo Cucina
Abitabile
Riscaldamento
Autonomo
Tipo Riscaldam.
Caldaia
Tipo Impianto
Pavimento
Fonte Energetica
Fotovoltaico
Infissi
Legno Doppio Vetro
Serramenti
Nuovo
Persiana
Tapparella Legno
Distanze
Posizione
Centro800 m
Lago300 m
Parco pubblico300 m
Altri servizi
Banca800 m
Supermercato300 m
Mappa
Via XX settembre 10, Arona (NO)
Condividi su
Cookie preference